72m2
1
Opt.
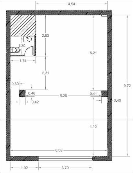
Commercial Unit of 72 square meters in a modern building, located at “Ramon Berenguer el Vell” street, next to the Maritime museum.
Open plan premises, on the ground floor, suitable for any commercial activity but ideally suited for retail.
DescriptionOpen plan premises
1 Toilet
FinishingLimestone floor
Equipment and ServicesElectric security shutter
Communications
Underground L2 (Paral·lel) / L3 (Drassanes)
Bus 20-21-36-57-64-120-157
Barcelona Airport at 10 Km
Ring road at <1 Km
| RENTAL Conditions | ||
|---|---|---|
| Contract Period | Service Charge | Price |
| 5-10 Years | 50 € | Leased |









